- Opmeting appartement
Nadat alles opgemeten is ter plaatse wordt op het kantoor gewerkt door middel van twee schermen.
De ter plaatse genomen foto's zijn dus zeer belangrijk als ondersteuning.

Nadat alles opgemeten is ter plaatse wordt op het kantoor gewerkt door middel van twee schermen.
De ter plaatse genomen foto's zijn dus zeer belangrijk als ondersteuning.

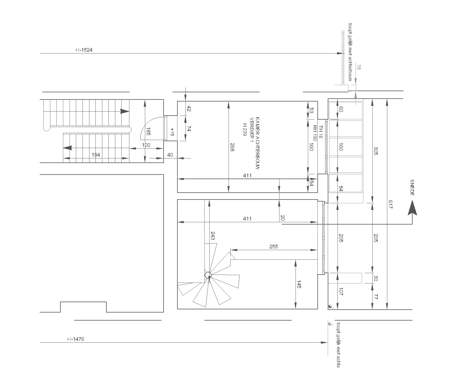
De bestaande woning wordt opmeten. daarna wordt alles tot in detail uitgetekend op het bureel.
te beginnen met de grondplannen. daarna de gevels.
als laatste wordt en een doorsnede getekend.

WAT HEB JE NODIG VOOR EEN VERGUNNING GEVELISOLATIE
gevel tekening bestaande en nieuwe toestand
doorsnede bestaande en nieuwe toestand
duidelijke benaming van de nieuwe en bestaande materialen.
deze plannen worden binnen gediend met de nodige benaming en codes bij het omgevingslokket.

Het bouwen van een garage is eenvoudig boudossier.
Uw bouwkundig tekenaar naakt je volledig dossier tekenen en indienen bij het omgevingsloket.
Wat heb je nodig.
grongplan
gevels
doorsnede
inplantings en situatie plan met aanduiding van de foto's
beschrijvende nota
Verbouwen van half open bebouwing volgens de nieuwe normen.

Opmeten voorgevel bestaande woning te Brussel.
Enkel uren meten en schetsen.
Daarna komt het tekenwerk op pc.
Aan de hand van de gemaakte schetsen word alles uitgetekend met autoCad.

Na eerste de volledige woning nagekeken te hebben zijn we gestart met het opmeten van de kelder van de rijwoning.

Aangezien het geen eenvoudige woning was, door schuine muren hebben we eerst het kadasterplan opgezocht.

