Kelder verdiep
Na eerste de volledige woning nagekeken te hebben zijn we gestart met het opmeten van de kelder van de rijwoning.

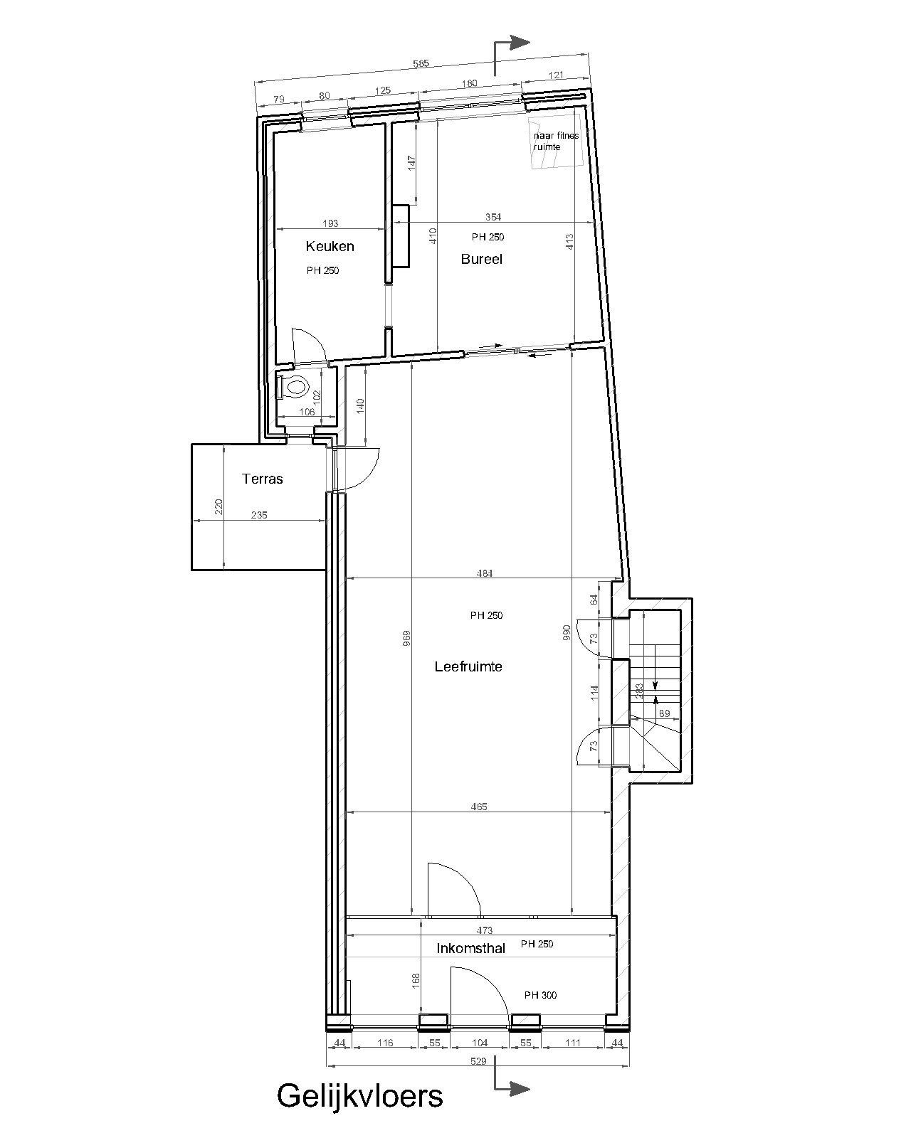
Gelijkvloers
Aangezien het geen eenvoudige woning was, door schuine muren hebben we eerst het kadasterplan opgezocht.
Om deze reden hebben ik dan ook meerdere schetsen en opmetingen moeten maken.
Op deze manier heb ik zo goed mogelijk de werkelijkheid kunnen benaderen.

Verdieping
Op de zelfde wijze heb ik de verdieping opgemeten.
Op kantoor heb ik als controle de onderlegger van het gelijkvloers gebruikt.
Op deze manier kom ik tot een juiste opmeting.

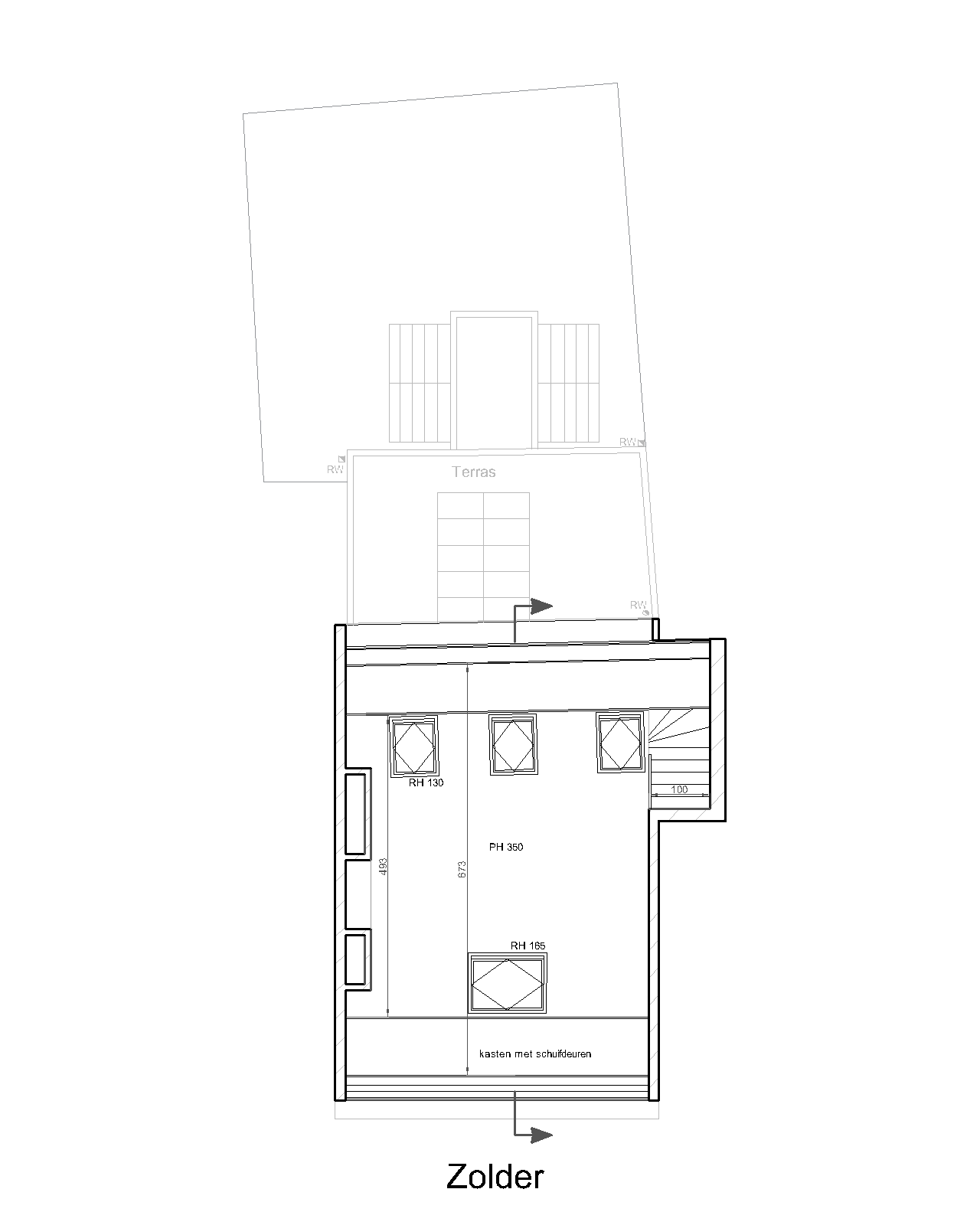
Zolder
De zolder was gebouwd met schuin dak en gordingen.
Mooi gerenoveerd met 3 veluxen

Voorgevel
Door middel van de lezer afstandmeter heb ik de hoogte kunnen bepalen dan de woning en de ramen.

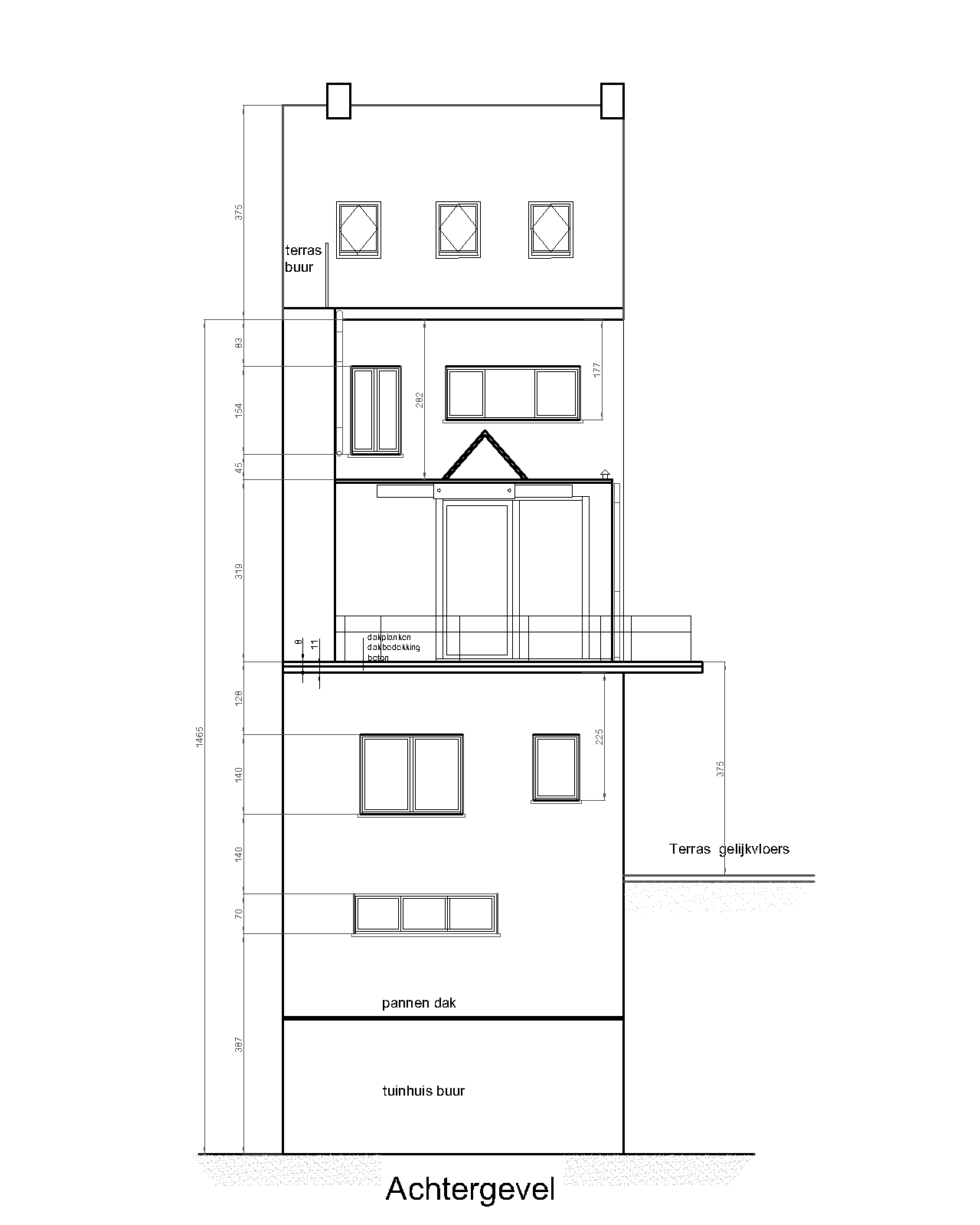
Achtergevel
Door niveau verschil van het terrein komt bij de achtergevel het kelderverdiep zichtbaar voorzien van ramen.

Doorsnede
Na het tekenen van de grondplannen en de gevels kunnen we de doorsnede ontwerpen.
Dit de kers op de taart.

Reactie toevoegen